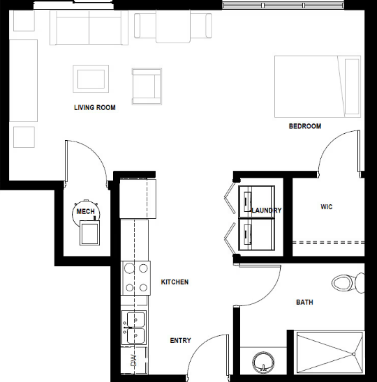
Efficient, modern studio apartments featuring open layouts, premium finishes, and in-home laundry for elevated everyday living.